VILLA SOLEA

Detta är Villa Solea

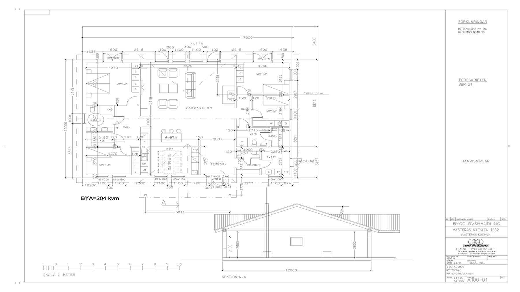
Ett fantastiskt hem för din familj att njuta i 204 kvm med allt du kan önska!
Vardagsrum med högt i tak, fyra stora sovrum, kök, bad och bastu.
Allt för att tillfredsställa de mest kräsna krav/önskemål!
Carport med 2 bilplatser och förråd (ca 18kvm).
Rymligt, vackert och modernt.
För fler detaljer: se vår planritning i vårt PDF-dokument!
Vi tillämpar en ansvarsfull miljöpolitik.

Trä framställs med hjälp av sol, luft och vatten för att skapa ett förnybart material.
M-hus använder sig bara av trä från bergstrakter, där det är noga kontrollerat.
Vid framställningen förbrukas mycket liten energi, som avger en väldigt liten mängd co2-gas, som är att likställa med den mängd som släpps ut om du skulle använda den som ved. Detta ger därför en neutral co2-balans i vår natur.
För att bygga ett M-hus på 150 kvm krävs det endast 3 lastbilslass. Ett konventionellt hus av samma storlek, byggt av tegel, krävs det hela 20 stycken.
Därför ger vårt sätt att bygga, minskade koldioxidutsläpp, i och med den minskade bränsleförbrukningen och även så ger det fler kostnadseffektiva fördelar som gynnar dig som köpare.
Att bygga ett M-hus lönar sig för alla, både kund och miljö!

Kvicksund ligger på en av de vackraste positioner på Mälaren, 22 km från Västerås, 15km från Eskilstuna och cirka 100 kilometer väster om Stockholm. Staden är unik i att den sträcker sig till de båda bankerna, tillhör en del av byn till kommunen Västerås och en kommun Eskilstuna. Ansluter järnväg vägbro dem i rörelse.

View More